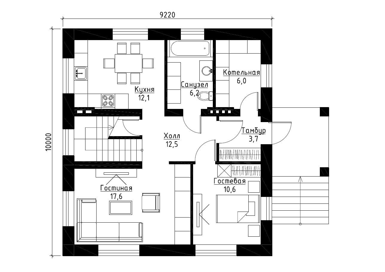
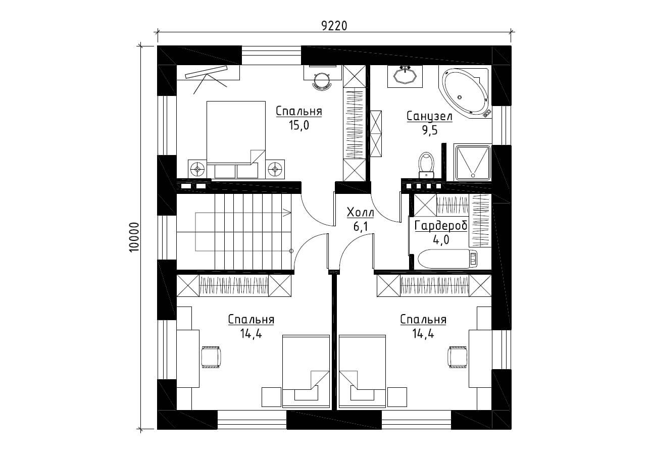
ДК-167-2

Фундамент монолитный ЖБ ростверк на сваях.

Наружные стены кирпич 2.1.НФ, утеплитель, облицовочный кирпич. Кровля металлочерепица

Приезжайте на консультацию и отведайте чашечку прекрасного капучино
Обсудим с Вами проект, определим смету, расскажем подробнее о нас и нашей работе
В соответствии с ФЗ «О персональных данных» №152 от 27.07.2006, отправляя любую форму на сайте, Вы даете своё согласие на обработку персональных данных. Обработка персональных данных осуществляется в соответствии с Политикой в отношении обработки персональных данных.